-
1/10
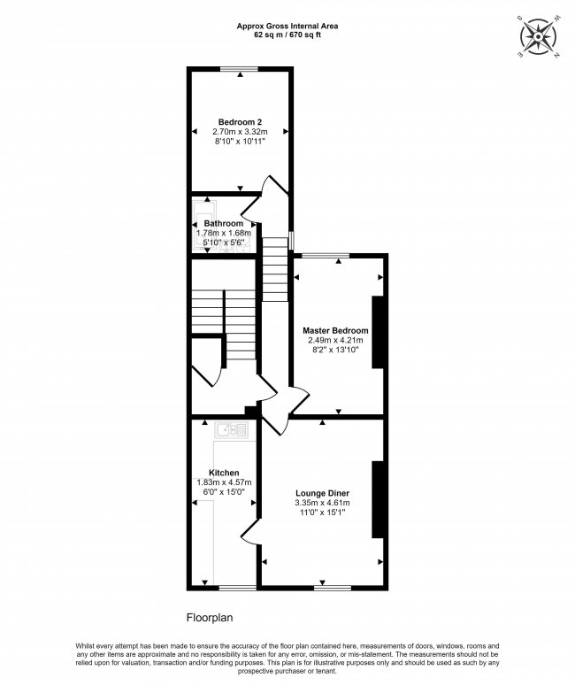
Lot 66
81-87 High Street, Rayleigh, Essex, SS6 7EJ
- High Yielding Retail Investment Opportunity
- Let to Greggs, Boots and Cardzone and Office Tenants
- Asset Management Potential
- Producing £176,950 per annum
- WAULT in Excess of Three Years to Expiry
- 7,207 sq ft (669.53 sq m)
- Substantial Upper Parts Offer Short/Medium Term Development Potential (stp)
- Draft Plans For Conversion of Upper Parts to 10 Flats Available
- High Footfall High Street Location in Attractive Market Town
- Guide Price Reflects a Gross Yield of 11.1%
-
1/9
Lot 67
Your Bid
£0
Hammer Price
£257,000
The Grapes Tavern, East Street, Hereford HR1 2LW
- Of interest to investors and occupiers.
- Grade II Listed circa 17th century public house
- Within a busy city centre location.
- By order of the LPA Receivers

- Vacant
-
1/8
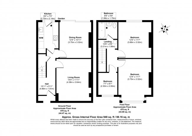
Lot 68
Your Bid
£0
Hammer Price
£1,450,000
112 Chamberlayne Road, Kensal Rise, London NW10 3JP
- Investment let at £136,152 pa (10.47% on Guide Price)
- Freehold Mixed Use Investment Comprising a ground floor shop together with 8 flats above
- Commercial let to tenant trading as Princess Nails on a new 10 year lease from June 2023
- Upper floors comprise 8 flats fully let on 1 year AST's
- Prime location 200ft from Kensal Rise Overground Station
- High Yielding Prime London Mixed Use Investment
-
1/7
-
1/5
-
1/10
-
1/11
-
1/15
Lot 73
35 Woodbridge Close, Romford, Essex, RM3 9UR
- A three bedroom end of terrace house
- In need of updating
- Benefitting from off-street parking at the rear
- Conveniently located for the amenities of Romford
- Eight week completion or earlier
-
1/10
Lot 74
Your Bid
£0
Hammer Price
£379,000
34 Cherry Hill Gardens, Croydon, Surrey, CR0 4QL
- A three bedroom end of terrace house
- In need of updating
- Potential to extend (subject to requisite consents)
- Conveniently located for the amenities of Croydon
- Vacant
-
1/14