-
1/7
Lot 154
19 & 19A Kent Road, Dagenham, RM10 8HA
- To be offered on Wednesday 28 February
- Freehold
- Vacant
- Own rear garden
- Of interest to investors, developers and occupiers
- Well located for the amenities of Dagenham
-
1/11
-
1/11
-
1/2
-
1/16
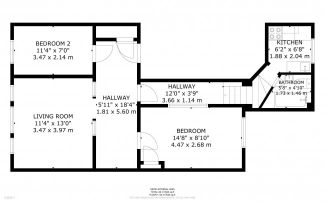
Lot 158
Your Bid
£0
Hammer Price
£207,000
9 Cromwell Road, Bristol, BS5 7NA
- To be offered on Wednesday 28 February
- Victorian mid terraced house
- Two bedrooms
- In need of modernisation and with potential to extend
- Rear garden
- Vacant
- 6 week completion
-
1/13
Lot 159
Your Bid
£0
Hammer Price
£780,000
18 Blandford Avenue, Twickenham, Middlesex, TW2 6HS
- To be offered on Wednesday 28 February
- A three bedroom semi-detached house with garage
- In need of modernisation
- Potential for extension, subject to all requisite consents
- Popular residential location within the catchment area for good schools
- Gross internal area (GIA) approx. 124 sq m (1335 sq ft) excluding garage
- Plot area approx. 0.07 acre
-
1/16
Lot 160
Your Bid
£0
Hammer Price
£305,000
19 Blewitts Cottages, Romford RM13 8SL
- To be offered on Wednesday 28 February
- A freehold mid terrace cottage
- In need of modernisation
- Scope for extension, subject to the requisite consents
- Gross internal floor area approx. 70 sq m (752 sq ft)
- Garden to front and deep garden to rear
- Site area approximately 259 sq m (2,788 sq ft)
- Vacant
-
1/18
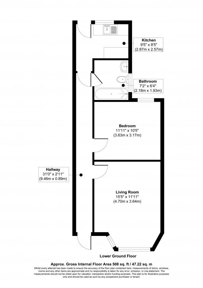
Lot 161
Your Bid
£0
Hammer Price
£680,000
Second Floor Flat, 62 Redcliffe Square, London, SW10 9BN
- To be offered on Wednesday 28 February
- Located in a prestigious central London Square
- A two bedroom second floor flat
- Conveniently located for West Brompton and Earls Court stations
- In need of modernisation
- Vacant
-
1/7
Lot 162
14 Birkbeck Grove, Ealing, London, W3 7QD
- To be offered on Wednesday 28 February
- Mid-terrace Victorian house
- Front and rear garden
- In need of modernisation
- Potential to extend (subject to the requisite consents)
- Vacant
-
1/11
Lot 163
105 Carlingford Road, Tottenham, London, N15 3EJ
- To be offered on Wednesday 28 February
- A three bedroom mid terrace house
- In need of modernisation
- Potential to extend (subject to requisite consents)
- Vacant
- Conveniently located for the amenities of Tottenham and Hornsey