Property Type
Sort By
Lots per page

Prev

1

...

6

7

8

...

13

Next

Loading, please wait...

  • Lot 60

    Your Bid £0

    Withdrawn Prior

    Building rear of 77 & 79 Southern Row, North Kensington, London W10 5AL
    • An appealing recently built four storey office building with lift.
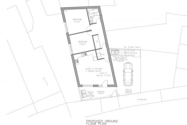
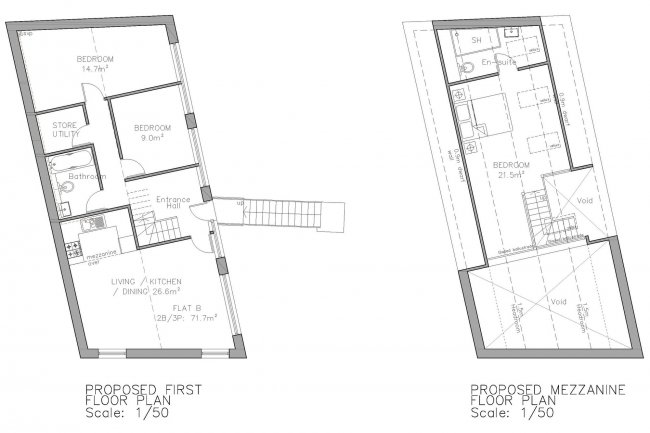
    • Planning permission for change of use of three floors to 6 x two bedroom, two bathroom apartments totalling approximately 4,690 sq ft
    • Secure secluded court yard position
    • Convenient for shops and underground

    £

    Full details
  • Lot 61

    Your Bid £0

    Sold Post

    12-14 Eign Gate, Hereford, HR4 0AB
    • Approved planning permission to retain the ground floor retail space and convert the upper floors into 3 x one bedroom flats.
    • Located on a prime pitch on Eign Gate in the Centre of Hereford.
    • Ground floor retail unit - Use Class E : This offers the purchaser to allow multiple business uses to trade from the Unit.
    • Access to the premise from both Eign Gate and Bewell Street (at the rear of the property)

    £

    Full details
  • Image Icon

    1/1

    Lot 62

    Your Bid £0

    Withdrawn Prior

    660 High Road, North Finchley, London, N12 0NL
    • A ground floor retail unit
    • Investment let at £13,200 per annum
    • 20 year lease from 2016
    • Internal area approximately 904 sq ft (figures taken from the VOA)

    £

    Full details
  • Lot 63

    Your Bid £0

    Available at £290,000

    The Yard, Frances Road, Basingstoke, Hampshire, RG21 3DB
    • 0.3 Acres in size
    • Planning potential for 2-3 Dwellings (subject to the requisite consents)
    • Located close to Basingstoke Town Centre in an established surrounding residential area
    • Potential for existing buildings to be refurbished and let out to provide an income or be owner occupied.

    £

    Full details
  • Image Icon

    1/3

    Lot 65

    Your Bid £0

    Hammer Price £480,000

    Sold

    8 Hill Rise, Richmond, Surrey TW10 6UA
    • Located on a prominent street in Richmond
    • Development potential to develop the upper floors (subject to the requisite consents)
    • Ground floor and upper floors approximately 1,237 sq ft (taken from EPC)
    • Investment let at £35,000 per annum (We believe the tenant is in arrears please refer to legal pack)
    • Please refer to the legal pack in relation to the condition of the property

    £

    Full details
  • Lot 66

    Your Bid £0

    Hammer Price £276,000

    Sold

    1B St Georges Road, Aldershot, Hampshire GU12 4LD
    • Development potential to create 2 flats (1 x two bedroom flat and 1 x three Bedroom flat) subject to the requisite consents.
    • Use Class E - This offers the purchaser to allow multiple business uses to trade from the Unit if they choose to purchase the property for an investment.
    • Potential to utilise permitted development rights for change of use to residential subject to the requisite consents
    • Located approximately 0.2 Miles from Aldershot Train Station
    • Existing Office space approximately 1,367 sq ft (127 sq m) 
    • The car parking space to the right of the property is not included in the sale. Please refer to the legal pack.

    £

    Full details
  • Lot 67

    Your Bid £0

    Withdrawn Prior

    Unit 1, 26 High Street, Slough, SL1 1EQ
    • Investment Let at £52,500 per annum
    • Let on a 10 year lease from September 2020 (No Tenant breaks)
    • The tenant has sub-divided their retail unit and sublets the right hand side unit
    • (known as 26 A) to a Hairdressers.
    • We believe the hairdressers is sublet at £9,000 per annum. (please rely on your own enquiries)
    • A 6 month rent deposit is held on account
    • Open Market Rent review in September 2025

    £

    Full details
  • Lot 68

    Your Bid £0

    Withdrawn Prior

    2 High Street, Canterbury, CT1 2JH
    • Investment Let at £75,000 p.a.
    • Let on a 15 year lease from May 2015 (approx. 8.5 years unexpired)
    • FR&I lease
    • Located on a prime pitch on Canterbury High Street
    • Future development potential to develop the upper floors (subject to the requisite consents)
    • VAT applicable

    £

    Full details
  • Lot 69

    Your Bid £0

    Sold Prior

    117 London Road, Twickenham TW1 1EE
    • A former restaurant with ancillary upper parts.
    • On a corner plot with development potential subject to consents
    • Approximate area 162 sq m (1,743 sq ft)
    • Well proportioned restaurant area with a significant rear extension
    • Vacant


    £

    Full details
  • Image Icon

    1/2

    Lot 70

    Your Bid £0

    Hammer Price £212,000

    Sold

    121 and 121a High Street, Whitton, Twickenham, Middlesex, TW2 7LG
    • Two retail units let on new 10 year leases
    • Tenants in occupation prior to the new leases
    • Currently producing £17,140.00 per annum increasing to £17,800.00 per annum from 1st September 2022
    • Nearby occupiers include Subway, William Hill and KFC
    • Convenient for Whitton Station and the amenities of Whitton and Twickenham

    £

    Full details

Prev

1

...

6

7

8

...

13

Next