Property Type
Sort By
Lots per page

Prev

1

...

12

13

14

...

23

Next

Loading, please wait...

  • Lot 127

    Your Bid £0

    Hammer Price £451,000

    Sold

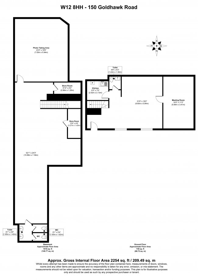
    150 Goldhawk Road, Shepherds Bush, London W12 8HH
    • Well located Freehold Office and Residential Ground Rent Investment
    • Comprising a ground floor and basement office with flat above (sold off)
    • Office arranged over 1,667 sq ft
    • Close to Goldhawk Road Underground Station
    • Entirely let on a lease expiring 2029
    • VAT is applicable
    • Investment let at £45,600 p.a. (10.13% GIY on Guide Price)

    £

    Full details
  • Lot 130

    Your Bid £0

    Withdrawn Prior

    Highland Steading, with Cafe and Holiday Accommodation, Laggan Bridge, By Newtonmore, PH20 1BT
    • To be offered on Tuesday 17th March 2026
    • Prominent location on General Wade's Military Road linking the A9 and A86
    • 18-Bed Bunkhouse in the Highlands with Café/ Restaurant
    • Additional Retail Space and a four Bedroom Owner's Accommodation
    • Unique opportunity to Purchase a Multi Use Property with Reconfiguration Opportunity
    • Prominent plot in the Cairngorms National Park
    • South Facing Outside terrace

    £

    Full details
  • Lot 131

    Your Bid £0

    Sold Prior

    Cockermouth Social Club, 5A-7 Main Street, Cockermouth, CA13 9LE
    • Town Centre Property
    • Former Social Club with function rooms
    • Ground and First Floor trading accommodation
    • Second Floor former living accommodation
    • Self-contained office accommodation to the rear
    • Asset management potential in its current use
    • Development potential to be converted to alternative uses (subject to the requisite consent)
    • Site extends to approximately 0.17 acres

    £

    Full details
  • Lot 132

    Your Bid £0

    Withdrawn Prior

    100 High Street, Tonbridge, TN9 1AN
    • Freehold Former Bank Building
    • Prime Riverside Location
    • Offered with Full Vacant Possession
    • 3,712 sq ft (344.86 sq m)
    • Planning approved for X4- 1 bed apartments and potential for an additional 2 bed penthouse subject to further planning permission.
    • No VAT

    £

    Full details
  • Lot 133

    Your Bid £0

    Available at £200,000

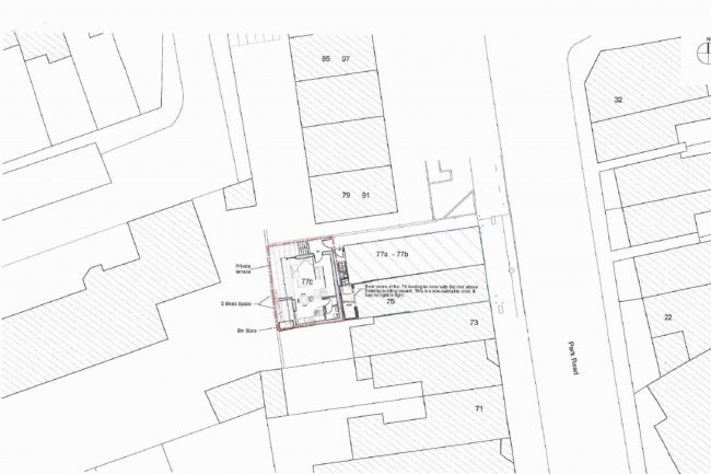
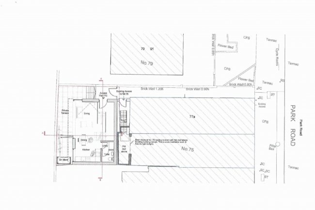
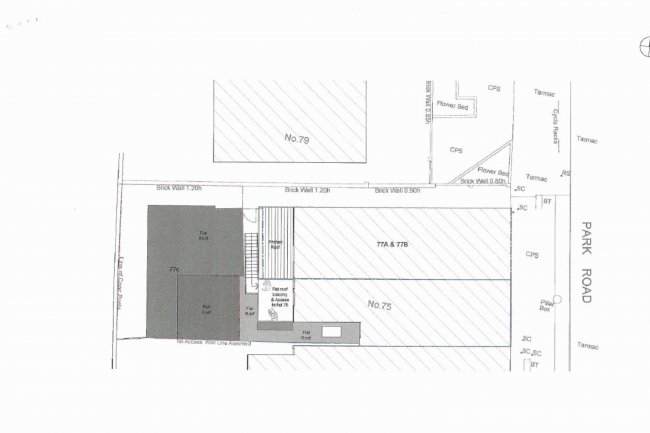
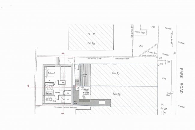
    Land on the west side of 75 Park Road, Kingston Upon Thames, KT2 6DE
    • A freehold parcel of land
    • Planning granted for the erection of a 2 storey dwelling with private terrace
    • Development works have commenced
    • CIL has been paid in full
    • Planning conditions discharged
    • Demolition of existing building completed
    • Total proposed GIA - 748 sq ft (69.44 sq m)
    • Vacant

    £

    Full details
  • Image Icon

    1/3

    Lot 134

    Your Bid £0

    Sold Prior

    12 & Part of 14 White Hart Lane, Tottenham, London N17 8DP
    • Representing a GIY of 10%
    • By order of Receivers
    • Ground floor retail and rear community centre/social club
    • Of interest to Investors
    • Investment Let at £20,000 p. a.

    £

    Full details
  • Lot 135

    Your Bid £0

    Withdrawn

    21 Union Street, Accrington , Lancashire BB5 1PL
    • Vacant Shop
    • Prior Approval for change of use of first floor to 8 residential units(1)
    • Arranged over Ground and First Floor
    • Asset management opportunity with the option to sub-divide
    • Comprising 7,576 sq ft
    • VAT is applicable
    • Vacant

    £

    Full details
  • Lot 137

    Your Bid £0

    Sold Prior

    Land at Laurence Road, Hounslow, London, TW3
    • Development opportunity
    • Area extends to approximately 0.127 hectares (0.315 acres) across two plots
    • Potential for mixed use residential scheme (subject to the requisite consents)
    • Within 500 metres of Hounslow East station providing Piccadilly Line services to Central London and Heathrow
    • 6 week completion available

    £

    Full details
  • Lot 138

    Your Bid £0

    Available at £275,000

    Building to the Side of 18 Bowmead, Eltham, London, SE9 3NL
    • A freehold detached building
    • Site of approx. 3,229 sq ft
    • Building approx. GIA of 753 sq ft
    • Development potential subject to the requisite consents
    • Vacant

    £

    Full details
  • Lot 139

    Your Bid £0

    Sold Prior

    Land at Comberton Hill, Kidderminster, DY10 1QH
    • Suitable for Developers and Investors
    • Freehold Development Site
    • Currently Used as Advertising (Let on Licenses)
    • 0.08 acres (0.03 hectares)
    • Full Planning Consent for 6 x Flats and Commercial Unit
    • Established and Popular Location
    • Located in Birmingham Commuter-Belt

    £

    Full details

Prev

1

...

12

13

14

...

23

Next